Carrito
Carrito vacío
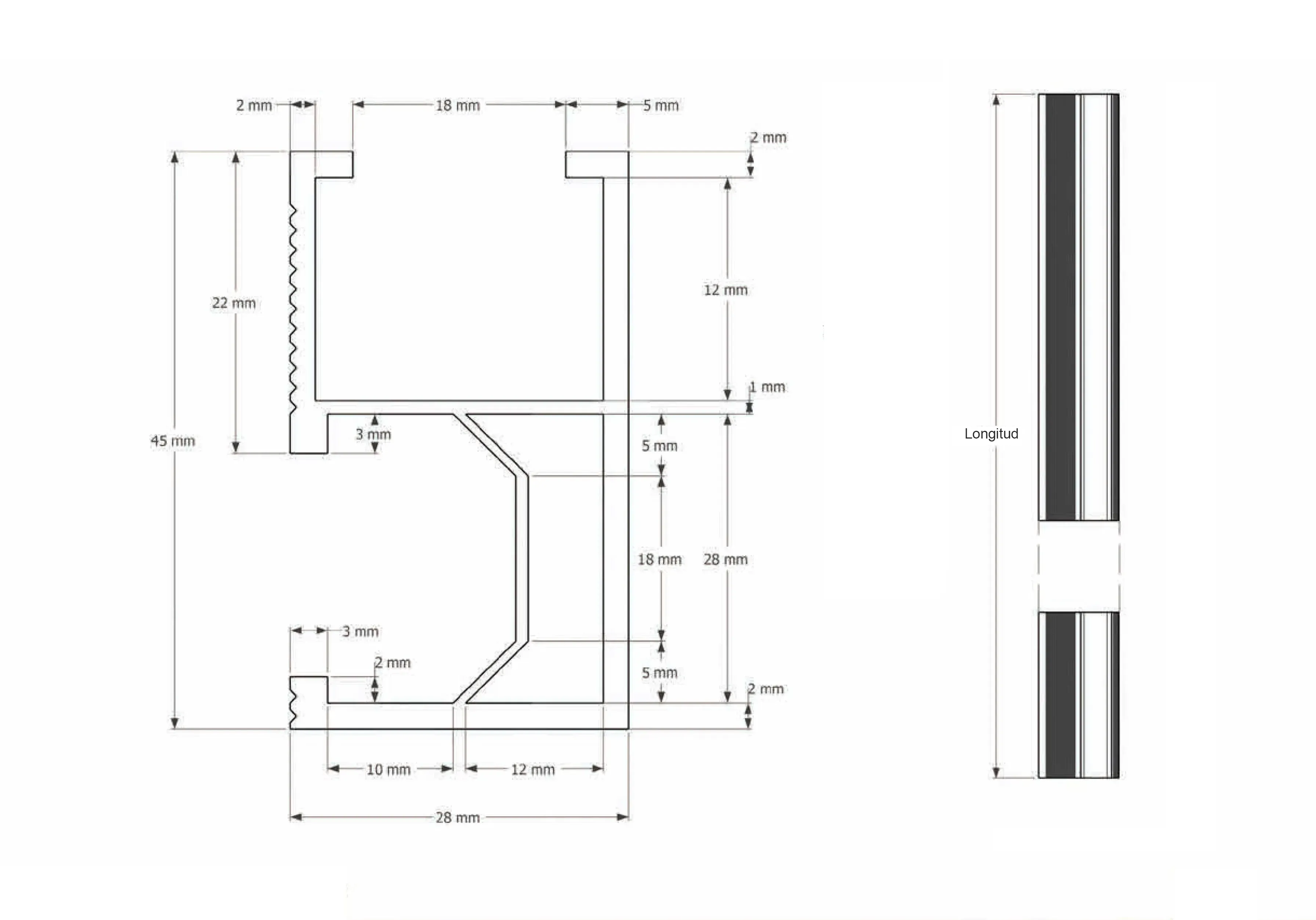
Carril de estructura solar en aluminio anodizado Al 6005-T5.
Diseño especial del riel para un fácil montaje con el resto de las piezas Schildt.
Su longitud permite un mejor aprovechamiento sin cortes.
| Código | Descripción | Longitud (mm) | Caja | U.M.V. | ||||||
|---|---|---|---|---|---|---|---|---|---|---|
| 010204522 | 2.2m | 2200 | 1 | 1 | ||||||
| 010204533 | 3.3m | 3300 | 1 | 1 |