Carrito
Carrito vacío
Su dimensión extendida permite su instalación con un mayor aprovechamiento del material.
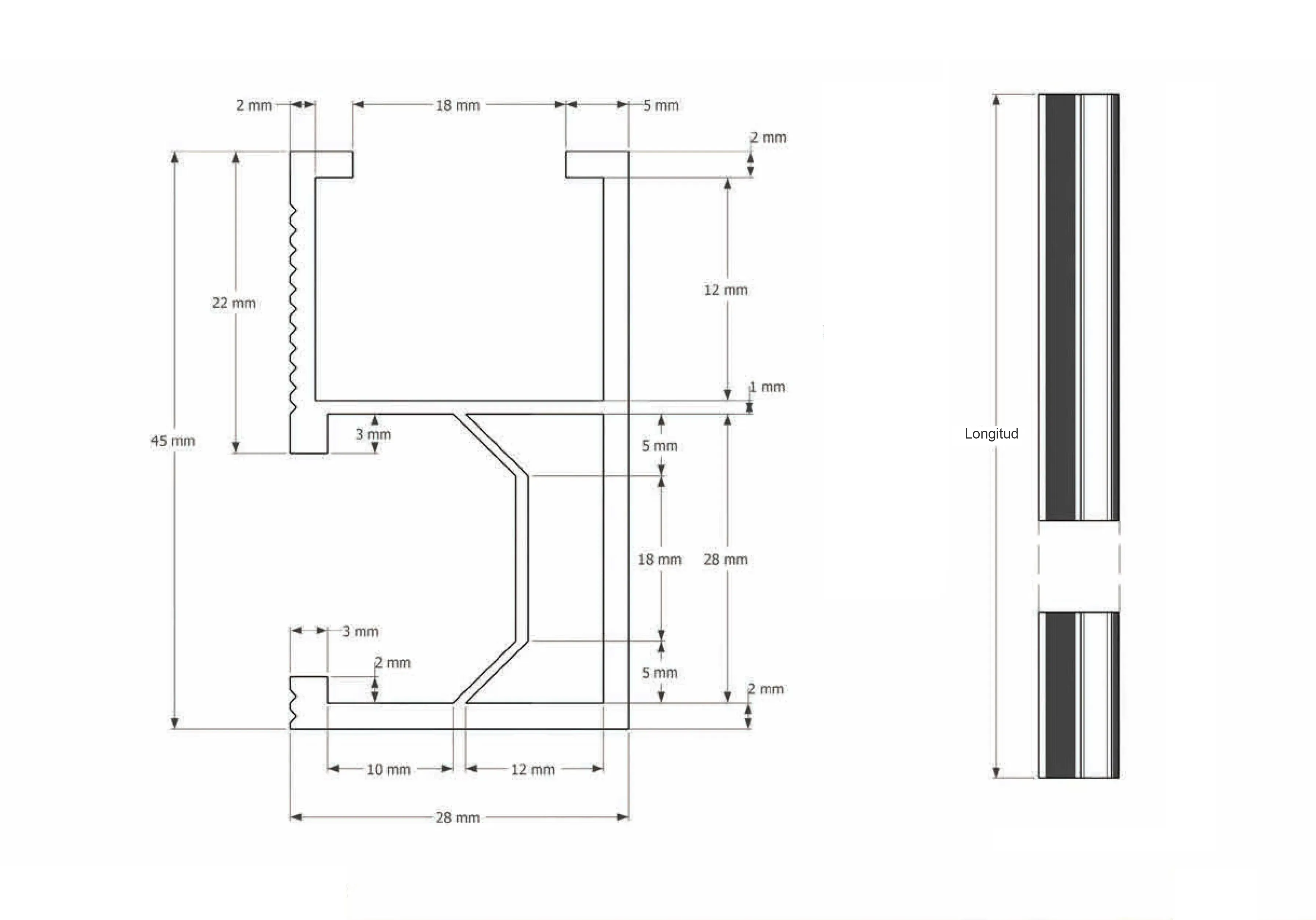
Carril de estructura solar en aluminio anodizado Al 6005-T5.
Diseño especial del riel para un fácil montaje con el resto de las piezas Schildt.
Su longitud permite un mejor aprovechamiento sin cortes.
| Código | Descripción | Longitud (mm) | Caja | U.M.V. | ||||||
|---|---|---|---|---|---|---|---|---|---|---|
| 010204524 | 2.4m | 2400 | 1 | 1 | ||||||
| 010204535 | 3.5m | 3500 | 1 | 1 |