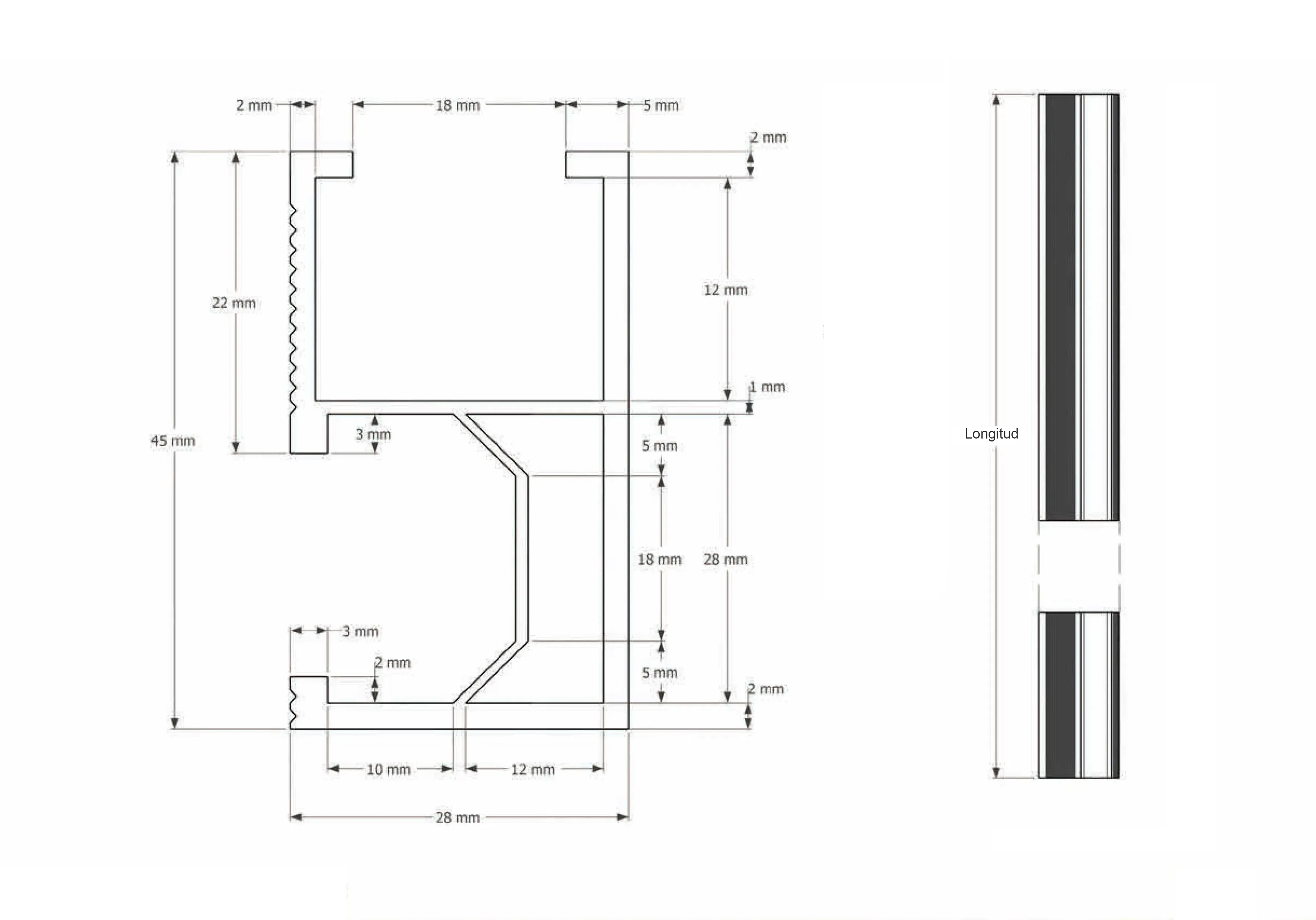
Carril 20/45/1,5 aluminio anodizado

Carril 20/45/1,5 aluminio anodizado

Categoría: Subcategoría:

Carril de estructura solar en aluminio anodizado Al 6005-T5.

Diseño especial del riel para un fácil montaje con el resto de las piezas Schildt.

Su longitud permite un mejor aprovechamiento sin cortes.

Seleccionar variante de producto

Volver a empezar
Descripción
Longitud (mm)
Caja
U.M.V.
Código DescripciónLongitud (mm)CajaU.M.V.
0102045222.2m220011
0102045333.3m330011